Dodaj nieruchomość do wielu portali nieruchomości

Łódź-Widzew Do sprzedaży Hala Magazynowa/Produkcyjna o powierzchni 600m

1870000 zł 3117 zł / m2
Skontaktuj się
z właścicielem
602
Oferta nr: 13737
Wyślij ogłoszenie na e-maila
Lokalizacja
Województwo
łódzkie
Powiat
Łódź
Miasto / Gmina
Łódź
Kod pocztowy
92-236
Dzielnica / Wieś
Widzew
Ulica
Piłsudskiego 141
Lokal użytkowy
Rynek
Wtórny
Rodzaj nieruchomości
hala
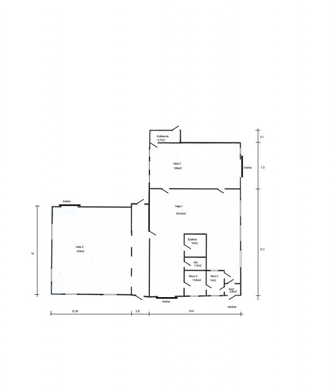
Powierzchnia użytkowa
600 m2
Przeznaczenie
produkcyjny
Liczba pomieszczeń
7
Media
prąd, woda, ciepła woda własna, telefon, internet
Informacje
Okolica
bank/bankomat, apteka, autobus, tramwaj, centrum handlowe, szkoła podstawowa
Opis
Do sprzedaży Hala Magazynowa/Produkcyjna o powierzchni 600 m2 + piwnica 180m2 usytuowana na działce o powierzchni 1545 m2. Grunt jest w użytkowaniu wieczystym. . Ogrzewanie jest z własnego pieca grzewczego na pellet. Wysokość pomieszczeń to od 3,5 m do 4,5 m. Obiekt jest zasilany w wodę ze studni.Media : prąd , siła,telefon,internet.Budynek budowany z cegły .Stan budynku śmiało określić na dobry. al.Piłsudskiego 141
cena jw.+ vat ( cena do negocjacji )
602 257 126 Marek 602 257 127 Krzysztof
FAQ
Jaka jest powierzchnia nieruchomości?
Oferowany obiekt dysponuje 600 m² przestrzeni użytkowej.
Jaka jest cena?
Obiekt oferowany jest do sprzedaży za 1870000 zł.
Jaki jest rodzaj nieruchomości?
To oferta dotycząca nieruchomości typu hala.
Jakie jest przeznaczenie lokalu?
Obiekt idealnie sprawdzi się jako przestrzeń produkcyjny.
Ile pomieszczeń ma lokal?
Liczba pomieszczeń w lokalu to 7.
Jakie media są dostępne w lokalu?
Media doprowadzone do lokalu obejmują: prąd, woda, ciepła woda własna, telefon, internet.