Dodaj nieruchomość do wielu portali nieruchomości

Ostatni Segment Stara Miłosna, 5 pomieszczeń, 2 łazienki,blisko Jana Pawła II

1499000 zł 9993 zł / m2
Skontaktuj się
z właścicielem
570
Oferta nr: 29638
Wyślij ogłoszenie na e-maila
Lokalizacja
Województwo
mazowieckie
Powiat
Warszawa
Miasto / Gmina
Warszawa
Kod pocztowy
05-077
Dzielnica / Wieś
Wesoła
Ulica
Cieplarniana 11
Dom
Rynek
Pierwotny
Rodzaj budynku
segment
Materiał budowlany
cegła kratówka
Pokrycie dachu
blacha
Podpiwniczenie
nie
Garaż
-
Rok budowy budynku
2025
Elewacja
-
Liczba kondygnacji
2
Powierzchnia całkowita
150 m2
Powierzchnia użytkowa
150 m2
Liczba pokoi
5
Okna
nowe PCV
Instalacje
wymienione
Stan budynku
do wykończenia
Charakter
jednorodzinny
Ogrzewanie
własne dla budynku
Media
prąd, woda, kanalizacja
Działka
Powierzchnia
330 m2
Wymiary
11/30
Zagospodarowanie działki
częściowo zagospodarowana
Ogrodzenie
tak
Informacje
Dojazd
asfalt
Okolica
fitness, zabudowa niska, bank/bankomat, komenda policji, apteka, przychodnia/szpital, żłobek, przedszkole, plac zabaw, szkoła podstawowa
Cena
1499000 zł
Opis
Deweloper EBM z Wesołej oferuje ostatni dostępny segment o powierzchni 150 m², z ogródkiem o powierzchni około 186 m². Jest to lokal w szeregu ośmiu domów. Nieruchomość przekazywana jest w stanie deweloperskim.

Lokalizacja
Segment położony jest na jednej z najpiękniejszych działek osiedla Stara Miłosna, pomiędzy ulicami Jana Pawła II i Gościniec. To zielona, spokojna część Warszawy Wesołej, chętnie wybierana przez młode rodziny.
Ulica asfaltowa posiada dostęp do wszystkich mediów miejskich. Działka wyróżnia się większą szerokością niż większość w okolicy, co zapewnia przestrzeń i poczucie prywatności.
Teren jest suchy, doskonale nasłoneczniony, w pobliżu Mazowieckiego Parku Krajobrazowego oraz licznych tras pieszych i rowerowych.

Komunikacja
Świetny dojazd do Warszawy oraz głównych tras szybkiego ruchu. W promieniu 200 metrów znajdują się przystanki autobusowe MZK z kursami do centrum, Pragi Południe, Międzylesia oraz stacji PKP Warszawa Wesoła (19 minut do Warszawy Śródmieście).
Dojazd trasą S2 pozwala dotrzeć do wielu punktów stolicy w kilkanaście minut.
W okolicy: szkoły publiczne i prywatne, przedszkola, paczkomat, kawiarnie, pizzeria, poczta, przychodnia, kluby fitness – wkrótce także nowy Dom Kultury.

Standard i budowa
Planowane zakończenie budowy: listopad 2025 r.
Termin gwarantowany w umowie: grudzień 2025 r.

Rozkład pomieszczeń
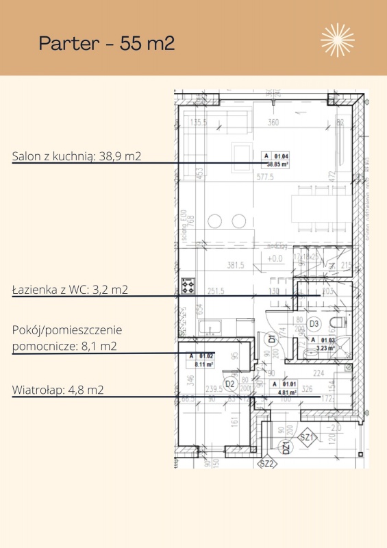
Parter – 55 m²

Salon z kuchnią: 38,9 m²

Łazienka/WC: 3,2 m²

Wiatrołap: 4,8 m²

Pokój/pomieszczenie pomocnicze: 8,1 m²

Piętro – 55 m²

3 pokoje: 13,3 m², 13,0 m² i 11,9 m²

Łazienka: 7,9 m²

Korytarz: 5,1 m²

Pomieszczenie gospodarcze/kotłownia: 4,4 m²

Poddasze nieużytkowe – powierzchnia podłogi 55 m², wysokość do 3 m, doprowadzone media.

Atuty budynku
Wysokie, jasne pomieszczenia (268 cm) z dużymi oknami na północ i południe, w tym drzwi HS do ogrodu.

Ściany z Porothermu i 20 cm styropianu, trzyszybowe okna, ciepły montaż.

Ogrodzenie z bramą i furtką, działka wyrównana, kostka brukowa i trawnik w standardzie.

Dwa miejsca parkingowe oraz rowerownia w części wspólnej.

Instalacje przygotowane pod fotowoltaikę do 6,5 kW, z możliwością montażu magazynu energii.

Pompa ciepła Viessmann Vitocal (lub równoważna) – niskie koszty ogrzewania, wysoka efektywność.

Rekuperacja i ogrzewanie podłogowe w standardzie.

Podłączenie do miejskiego wodociągu i kanalizacji.

Wysoka jakość materiałów
Pustaki Porotherm Wienerberger o podwyższonej izolacyjności cieplnej.

Drzwi wejściowe Premium – grubsze, lepiej izolowane, zwiększające bezpieczeństwo.

Brama Wiśniowski – sprawdzona w poprzednich realizacjach.

Pompa ciepła renomowanej marki – przewyższa najtańsze rozwiązania o podobnej mocy.

Panele elewacyjne o realistycznej strukturze drewna.

Ogrzewanie podłogowe rozprowadzone optymalnie dla niższych kosztów.

Bezpieczeństwo transakcji
Umowa deweloperska z indywidualnym harmonogramem płatności.

Płatności po realizacji kolejnych etapów, kontrolowanych przez bank.

Wszystkie umowy podpisywane u notariusza (poza rezerwacyjną na 14 dni).

Cena niezmienna po podpisaniu umowy.

Możliwość obejrzenia wcześniejszych inwestycji EBM w Wesołej i Hipolitowie.

Deweloper: EBM Ewa Jeżak, Barbara Jadczak, Michał Biwan spółka cywilna, NIP 9522210362.

Oferta ma charakter informacyjny i stanowi zaproszenie do negocjacji w rozumieniu art. 71 Kodeksu Cywilnego.
FAQ
Jaka jest powierzchnia nieruchomości?
Nieruchomość ma metraż 150 m².
Jaka jest cena?
Koszt zakupu tej nieruchomości to 1499000 zł.
Ile pokoi ma dom?
Dom oferuje 5 funkcjonalne pokoje.
Jaka jest powierzchnia działki?
Do nieruchomości przynależy działka o powierzchni 330 m².
Z jakiego materiału jest dom?
Konstrukcja domu opiera się na cegła kratówka.
Jaki jest stan budynku?
Nieruchomość wymaga do wykończenia.
Jakie jest ogrzewanie?
Budynek ogrzewany jest systemem własne dla budynku.