Dodaj nieruchomość do wielu portali nieruchomości

Przestronne 3-pokojowe mieszkanie - 58.15 m2 / Centrum Wyszkowa

523350 zł 9023 zł / m2
Skontaktuj się
z właścicielem
730
Oferta nr: 39579
Wyślij ogłoszenie na e-maila
Lokalizacja
Województwo
mazowieckie
Powiat
wyszkowski
Miasto / Gmina
Wyszków
Kod pocztowy
07-200
Dzielnica / Wieś
-
Ulica
SOWIŃSKIEGO 45
Budynek
Rynek
Wtórny
Piętro
3
Liczba pięter
4
Rodzaj budynku
Blok
Rok budowy budynku
-
Informacje
Okolica
fitness, zabudowa niska, bank/bankomat, komenda policji, apteka, PKP, PKS, autobus, bazarek, centrum handlowe, żłobek, przedszkole, plac zabaw, szkoła podstawowa
Wysokość czynszu
Mieszkanie
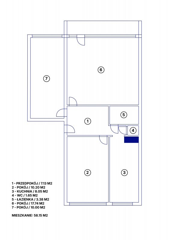
Liczba pokoi
3
Powierzchnia użytkowa
58 m2
Stan mieszkania
do wprowadzenia
Okna
nowe PCV
Instalacje
nie wymienione
Ogrzewanie
miejskie
Media
prąd, woda, ciepła woda miejska, gaz, telefon, internet, TV kablowa
Pomieszczenia dodatkowe
balkon, piwnica
Opis
Dzień dobry!
Nadszedł czas na zmiany, więcej wyzwań, a co za tym idzie, czas pożegnać mieszkanie w Wyszkowie.

Mieszkanie bardzo dobrze położone (centrum Wyszkowa), więc wszędzie jest blisko.

Bardzo ustawne, dzięki dobremu rozkładowi, ma się wrażenie, że jest sporo większe. Metraż to 58.15 m². Największy pokój posiada balkon, który rozciąga się po całej szerokości pomieszczenia. Każde pomieszczenie jest dobrze doświetlone i jasne. Mieszkanie jest dwustronne!

Do mieszkania przynależy spora piwnica. Miejsca parkingowe ogólnodostępne pod blokiem. Mieszkanie na 3. piętrze.

Kuchnia oddzielna i widna, z oknem. WC również oddzielne.

Mieszkanie jest w pełni wyposażone i umeblowane (całość sprzętów i mebli jest w cenie mieszkania, na życzenie kupującego możemy je opróżnić).

Lokalizacja – ul. Generała Józefa Sowińskiego 45

Centrum Wyszkowa
Pasaż handlowy, apteka, przystanki, szkoły, przedszkola, wszystko pod ręką :)
Na spacer do parku czy nad Bug również rzut beretem :P
Mieszkanie ma księgę wieczystą. Nie ma w niej żadnych wpisów. Pełna własność.

Sprzedaję sam, bez pośredników, a zatem również bez prowizji :)

Zapraszam do kontaktu :)

Cena oczywiście jest negocjowalna.
FAQ
Jaka jest powierzchnia nieruchomości?
Całkowity metraż lokalu to 58 m².
Jaka jest cena?
Nieruchomość wystawiona jest za 523350 zł.
Ile pokoi ma mieszkanie?
W lokalu znajdują się 3 oddzielne pomieszczenia.
Jaki jest stan mieszkania?
Mieszkanie jest do wprowadzenia i gotowe do zamieszkania.
Jaka jest wysokość czynszu?
Wysokość miesięcznych opłat to zł.
Na którym piętrze znajduje się mieszkanie?
Lokal położony jest na kondygnacji numer 3.
Jakie jest ogrzewanie?
Źródłem ciepła jest ogrzewanie miejskie.