Dodaj nieruchomość do wielu portali nieruchomości

Budynek mieszkalno-usługowy w centrum miasta

1197000 zł 3990 zł / m2
Skontaktuj się
z właścicielem
530
Oferta nr: 40975
Wyślij ogłoszenie na e-maila
Lokalizacja
Województwo
warmińsko-mazurskie
Powiat
piski
Miasto / Gmina
Pisz
Kod pocztowy
12-200
Dzielnica / Wieś
-
Ulica
ul. Józefa Piłsudskiego
Dom
Rynek
Wtórny
Rodzaj budynku
szeregowiec
Materiał budowlany
-
Pokrycie dachu
blachodachówka
Podpiwniczenie
tak
Garaż
w budynku
Rok budowy budynku
-
Elewacja
-
Liczba kondygnacji
4
Powierzchnia całkowita
300 m2
Powierzchnia użytkowa
300 m2
Liczba pokoi
10
Okna
-
Instalacje
-
Stan budynku
do odświeżenia
Charakter
-
Ogrzewanie
miejskie
Media
prąd, woda, kanalizacja
Działka
Powierzchnia
213 m2
Wymiary
-
Zagospodarowanie działki
zagospodarowana
Ogrodzenie
-
Informacje
Dojazd
asfalt
Okolica
fitness, basen, zabudowa niska, bank/bankomat, apteka, przychodnia/szpital, PKP, autobus, żłobek, przedszkole, plac zabaw, szkoła podstawowa
Cena
1197000 zł
Opis
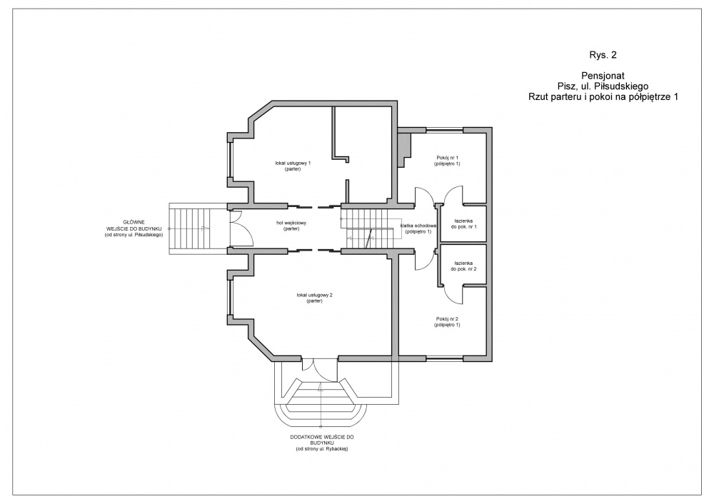
Na sprzedaż funkcjonalny budynek mieszkalno-usługowy o powierzchni ok. 300 m², położony w centrum Pisza, przy ul. Piłsudskiego 7. Nieruchomość od lat wykorzystywana jako pensjonat, w dobrym stanie technicznym, z dużą elastycznością adaptacyjną pod różne formy działalności lub zabudowę mieszkalną.

Charakterystyka budynku
• powierzchnia całkowita: ok. 300 m²
• budynek z lat 90., dach po remoncie (ok. 12 lat temu)
• stan ogólny: dobry, do odświeżenia
• ogrzewanie miejskie
• ciepła woda miejska w sezonie zimowym, bojler w sezonie letnim
• garaż w bryle budynku
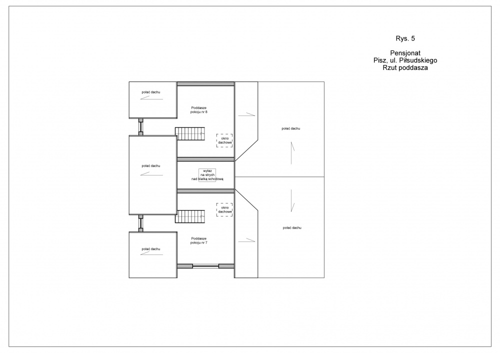
• strych do wykorzystania jako powierzchnia magazynowa lub rozbudowy funkcji

Układ i funkcjonalność
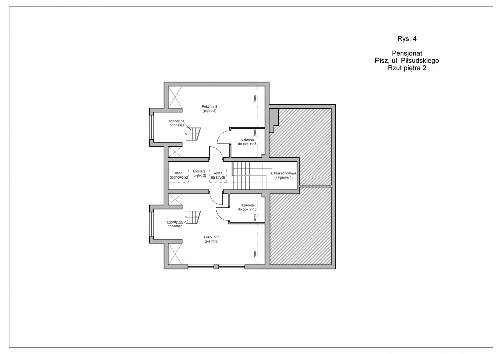
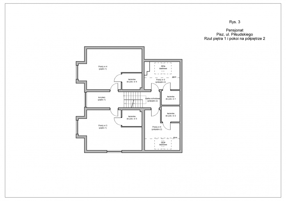
• 8 pokoi z łazienkami, rozmieszczonych na kilku kondygnacjach
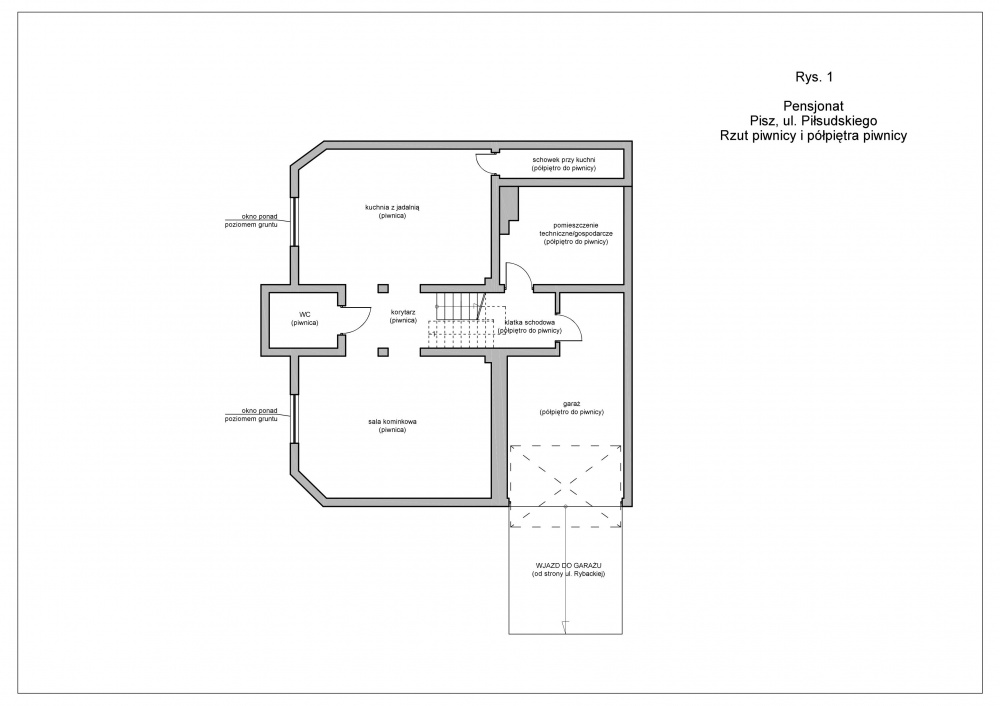
• przyziemie: kuchnia ze stołówką do wspólnego użytku, WC, sala telewizyjna z kominkiem
• półpiętro: pomieszczenie gospodarcze (pralnia, przechowywanie pościeli i ręczników) zaplecze techniczne (bojler, liczniki mediów) bezpośrednie wejście do garażu
• wysoki parter: 2 niezależne lokale użytkowe jeden aktualnie wynajmowany (fryzjer) z osobnym wejściem z ulicy oraz wejściem wewnętrznym, drugi przygotowany pod działalność usługową (wcześniej gabinet kosmetyczny)
• piętra: pokoje 2-, 3- i 4-osobowe, wszystkie z łazienkami
• dwa pokoje dwupoziomowe na najwyższej kondygnacji

Atuty lokalizacji
• centrum miasta, przy jednej z głównych ulic
• bardzo dobra ekspozycja dla działalności usługowej
• bliskość jeziora Roś, rzeki Pisy i Puszczy Piskiej
• miasto o charakterze turystycznym, całoroczny ruch sezonowy
• pełna infrastruktura miejska w bezpośrednim sąsiedztwie
• łatwy dostęp pieszy i samochodowy

Możliwe sposoby wykorzystania budynku :
Budynek daje szerokie możliwości adaptacji bez konieczności przebudowy konstrukcyjnej:
• pensjonat, hostel, obiekt noclegowy
• wynajem krótkoterminowy lub długoterminowy
• dom seniora lub prywatny dom opieki
• centrum rehabilitacji, fizjoterapii, usług zdrowotnych
• gabinety kosmetyczne, medycyna estetyczna, wellness
• biura, kancelarie, siedziba firmy z zapleczem noclegowym
• połączenie funkcji mieszkalnej i usługowej (dochód pasywny z najmu)

Informacje istotne dla kupującego
• funkcjonujący układ pokoi z łazienkami
• dwa lokale użytkowe generujące lub mogące generować stały dochód
• ogrzewanie miejskie
• brak konieczności kosztownych remontów konstrukcyjnych
• nieruchomość gotowa do dalszego użytkowania lub adaptacji

Więcej informacji chętnie udzielę telefonicznie.

Zapraszam na prezentację i do składania ofert.

Powyższy opis ma charakter informacyjny i nie stanowi oferty w rozumieniu przepisów Kodeksu Cywilnego.

FAQ
Jaka jest powierzchnia nieruchomości?
Dom oferowany do sprzedaży ma 300 m² powierzchni użytkowej.
Jaka jest cena?
Dom wystawiono na sprzedaż za 1197000 zł.
Ile pokoi ma dom?
Nieruchomość składa się z 10 pomieszczeń mieszkalnych.
Jaka jest powierzchnia działki?
Dom zlokalizowany jest na działce o powierzchni 213 m².
Czy dom posiada garaż?
Garaż znajduje się w budynku.
Jaki jest stan budynku?
Dom jest w stanie: do odświeżenia.
Jakie jest ogrzewanie?
W nieruchomości zastosowano ogrzewanie miejskie.